Quartier Mackensen, Hildesheim

2. Preis
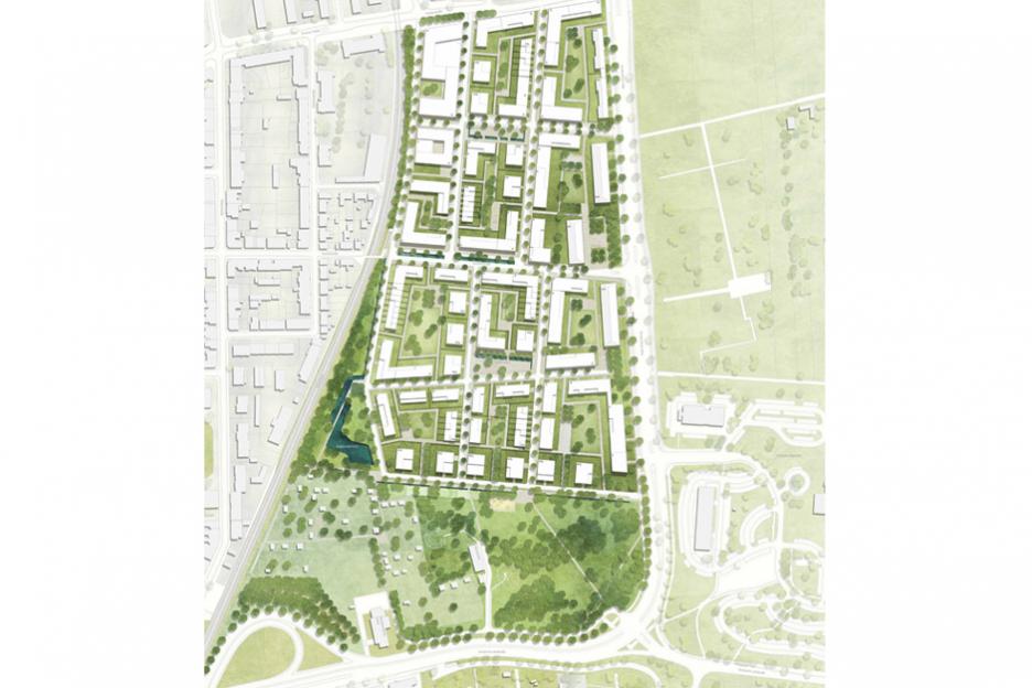
Vielfältiges Wohnen und Arbeiten am lebendigen Stadtrand

Bilder

Pläne

Beschreibung

Das ca. 12 ha große Areal der ehemaligen Mackensenkaserne wird zu einem gemischten Stadtquartier transformiert, welches Bezüge der gewachsenen Stadt bewusst aufnimmt und eigenständig in einer neuen Haltung zu seinen inneren und äußeren Landschaftsräumen interpretiert. Die vielfältigen Angebote differenzierter Freiraumqualitäten, Raumerlebnisse, Wohn-Typologien und Nutzungen generieren einen lebendigen Stadtteil mit eigener Identität sowie hoher Lebensqualität für unterschiedlichste Bewohner, Beschäftigte und Besucher. Ein Vorschlag zur grünen Urbanität eines vitalen Quartiers am Stadtrand.

Jahr
2014
Verfahren

Begrenzt offener, einstufiger, städtebaulicher Wettbewerb

Auslober

Stadt Hildesheim

Projektpartner

winkelmüller.architekten, Berlin
Machleidt GmbH Städtebau /Stadtplanung, Berlin
Visualisierung Jens Gehrcken